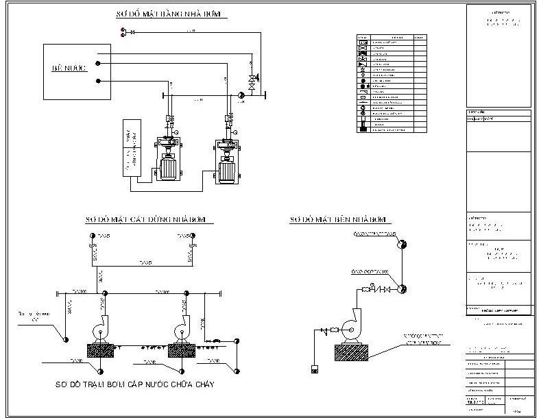
Nội dung bản vẽ PCCC bao gồm: bản vẽ hệ thống báo cháy tự động, bản vẽ sơ đồ nguyên lý báo cháy, chi tiết lắp đặt, bản vẽ hệ thống chữa cháy vách tường, chi tiết lắp đặt nhà bơm – tủ chữa cháy, bản vẽ sơ đồ nguyên lý hệ thống PCCC.
Công trình: Dự án cải tạo trụ sở làm việc TW Đoàn TNCS HCM – Số 62 Bà Triệu
Mời bạn Like, Share bài viết để được nhiều người biết tới chuyên mục Blog Phòng Cháy! Mời tải về bản vẽ
Mô tả bản vẽ PCCC:




Mời quý khách và độc giả gửi câu hỏi hoặc nội dung cần chia sẻ về địa chỉ Email: ec.thaibinhduong@gmail.com để được chúng tôi giải đáp mọi thắc mắc và chia sẻ bài viết của bạn.
Nội dung đã được đăng ký cấm sao chép với Khi sao chép nội dung lên Website khác vui lòng ghi rõ nguồn website: “114hanoi.net” sẽ được chấp thuận bởi